Rif: IMMO-120941012
CASTELLAMMARE DI STABIA
NAPOLI
Per chi desidera vivere in spazi ampi e accoglienti da condividere con la propria famiglia, questo immobile rappresenta la scelta perfetta.
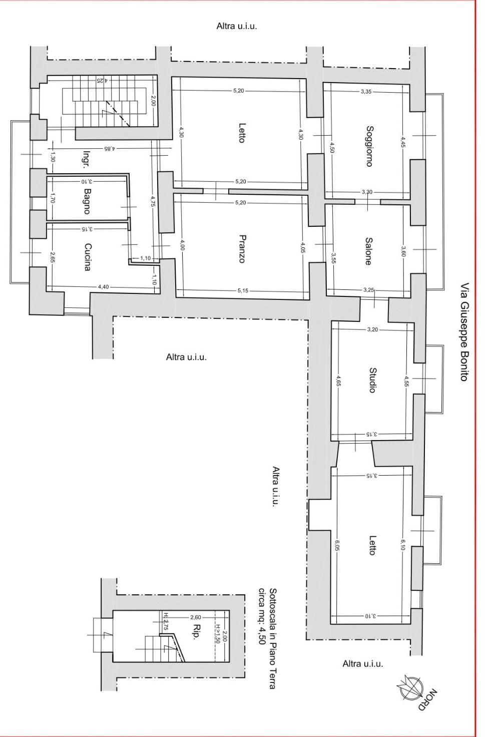
Proponiamo un appartamento di generosa metratura situato nelle vicinanze di via Bonito. L'immobile si trova al primo piano di un edificio recentemente ristrutturato, assicurando comfort e modernità.
All'ingresso, un corridoio funge da pratico disimpegno, collegando armoniosamente le varie stanze. A destra si trovano la cucina e il bagno, mentre a sinistra si apre un ampio soggiorno che conduce alla zona notte.
L'appartamento comprende sei camere, di cui quattro che offrono una splendida vista panoramica. La doppia esposizione garantisce ambienti particolarmente luminosi e ariosi, ideali per vivere al meglio ogni momento della giornata.
Inoltre l'immobile dispone di un pratico ripostiglio all'interno dell'androne condominiale.
Grazie alla sua ampia metratura, l'immobile si presta anche ad essere suddiviso in due unità abitative, rispondendo così a diverse esigenze abitative e di investimento.
Proponiamo un appartamento di generosa metratura situato nelle vicinanze di via Bonito. L'immobile si trova al primo piano di un edificio recentemente ristrutturato, assicurando comfort e modernità.
All'ingresso, un corridoio funge da pratico disimpegno, collegando armoniosamente le varie stanze. A destra si trovano la cucina e il bagno, mentre a sinistra si apre un ampio soggiorno che conduce alla zona notte.
L'appartamento comprende sei camere, di cui quattro che offrono una splendida vista panoramica. La doppia esposizione garantisce ambienti particolarmente luminosi e ariosi, ideali per vivere al meglio ogni momento della giornata.
Inoltre l'immobile dispone di un pratico ripostiglio all'interno dell'androne condominiale.
Grazie alla sua ampia metratura, l'immobile si presta anche ad essere suddiviso in due unità abitative, rispondendo così a diverse esigenze abitative e di investimento.
Consistenze
| Descrizione | Superficie | Sup. comm. |
|---|---|---|
| Principali | ||
| Immobile - 1° piano | 135 Mq | 135 Mqc |
| Balcone - 1° piano | 12 Mq | 4 Mqc |
| Cantina - piano terra | 4 Mq | 1 Mqc |
| Totale | 140 Mqc | |






